产品列表
无锡市金城电站阀门厂
地址:无锡市滨湖区胡埭冬青路8号
销售部:0510-85181288
电话:0510-85181288 82602588
传真:0510-85180005 85185222
Email: sales@wxdzfm.com
网址:www.wxdzfm.com
| KDRK型空气电加热器 |
KDRK型空气电加热器是利用电能转换成热能的成套装置,具有能源供应方便,结构紧凑,温度 自动控制,便于安装维护,无污染等优点。
本电加热器由管状容器及电热元件组成,配以温度控制柜(台)构成,发热元件采用不锈钢无缝 管作保护套管,内部发热元件由高温电阻丝,结晶氧化镁组成,温度控制采用可控硅调节,PID数 字显示,在控温范围内,可任意设定所需温度,并自动保持恒温,控制温度±5°C,并有超限声光报 警和多项保护功能,可就地或远距离控制。
主要技术参数
型 号
|
KDRK-15
|
KDRK-30
|
KDRK-45
|
KDRK-60
|
电加热器总功率(KW)
|
15
|
30
|
45
|
60
|
工作电压
|
|
220V
|
|
额定电流(A)
|
3×23
|
3×46
|
3×70
|
3×92
|
常规介质压力(9_8×104Pa)
|
2
|
常规介质出口局温度
|
300°C
|
加热量(10KJ/H)
|
43
|
86
|
130
|
172
|
温度调节范围
|
0-300°C
|
进出口管径
|
Dg80-
Dg100
|
Dg100-
Dg125
|
Dg125-
Dg150
|
Dg125-
Dg150
|
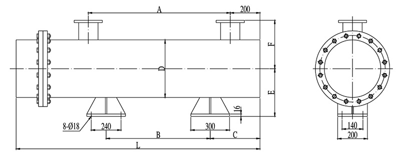
外形尺寸表
型号
|
A
|
B
|
L
|
C
|
E
|
F
|
D
|
KDRK-15
|
1155
|
900
|
1960
|
335
|
314
|
280
|
377
|
KDRK-30
|
1740
|
1300
|
2562
|
430
|
260
|
314
|
377
|
KDRK-45
|
1740
|
1300
|
2570
|
370
|
365
|
338
|
426
|
KDRK-60
|
1740
|
1300
|
2600
|
370
|
370
|
400
|
478
|
外形尺寸图

|
上一页:金属波纹管膨胀节 下一页:QZC型气化装置 |
 |